29. rujan 2025. | Autor: dd

Informacija o zatvaranju prolaza prema tržnici

            Pučko otvoreno učilište Varaždin (dalje: POU Varaždin) je investitor u projektu “Centar kreativnih i kulturnih industrija UPVŽ“ koji se provodi na temelju ugovora o dodjeli bespovratnih sredstava u sklopu Integriranog teritorijalnog programa u financijskom razdoblju 2021. –2027. kroz ITU mehanizam za Urbano područje Varaždin.

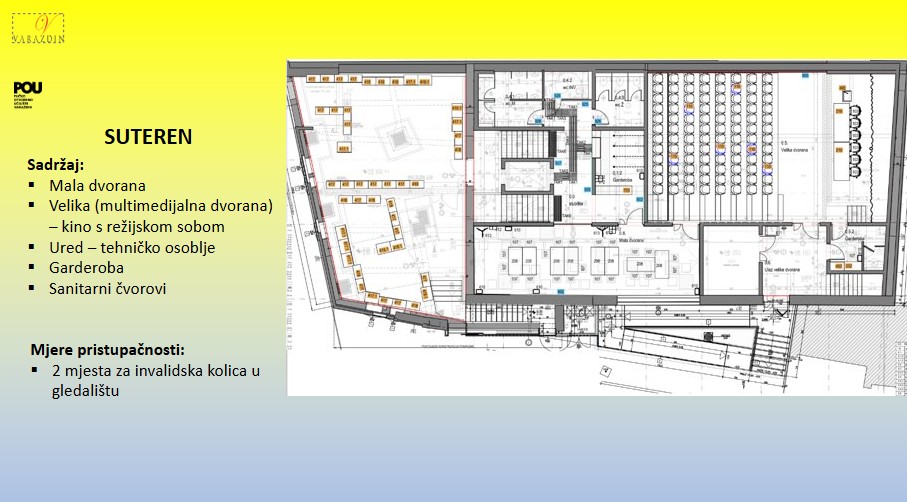
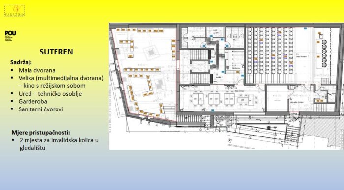
            U sklopu projekta predviđeni su radovi rekonstrukciie i adaptacije građevine na adresi Kukuljevićeva 11 u Varaždinu (nekadašnje kino “Dom“) koje će ovom revitalizacijom postati Centar kreativnih i kulturnih industrija.

 

Budući da se predmetna građevina nalazi u uskoj gradskoj jezgri te na prolazu prema prostoru Varaždinske gradske tržnice, ističemo da navedeni prolaz nije javna površina. No, s obzirom na navike građana, u novom projektu rekonstrukcije predmetne građevine predviđeno je i daljnje postojanje prolaza po završetku radova.

 

Sukladno Zakonu o zaštiti na radu (NN 71/2014) za vrijeme izvođenja radova rušenja, radova na krovu, radova koji predstavljaju opasnost za okolinu te radova na spoju sa susjednom zgradom prolaz će biti zatvoren. U ovom trenutku nije moguće reći sa sigurnošću o kojem razdoblju je riječ. Svakako će se poduzeti sve da to bude što kraće, ali to ovisi o dinamici radova.

 

Pristup svim trgovcima u prolazu omogućen je iz smjera Varaždinske gradske tržnice, kao i iz ulice Petra Preradovića. Ujedno, svi gospodarski subjekti u Kukuljevićevoj ulici moći će dalje raditi.

 

Privremena regulacija prometa potrebna je radi postave krana koji će se postavili naknadno, a koji se ne može nigdje drugdje postaviti. Predviđa se da će kran biti postavljen do godinu dana nakon čega bi trebali biti završeni svi građevinski radovi i nakon čega će ostati samo obrtnički radovi. Zatvaranjem ulice privremenom regulacijom ni jednom poslovnom prostoru neće biti onemogućen pristup niti će se morati zatvarati.

 

Uz sva nastojanja, nažalost drugog rješenja nema. Ljubazno molimo za razumijevanje i strpljenje. Budući da je riječ o rekonstrukciji građevine koja već godinama stoji prazna, propada i nagrđuje centar grada, vjerujemo da će nakon izvođenja radova svima u okruženju biti bolje i ljepše, budući da se gradi prostor koji će biti na raspolaganju upravo građanima.

 

                                                                       Lana Velimirović Vukalović, prof.

                                                                       Ravnateljica POU Varaždin